Reg.-Nr.: 2009-1-11 Aufgabe: Bauwerksplanung für die Erweiterung der Hochschule für Technik, Fakultät A (Architektur und Gestaltung) und eine städtebauliche Aussage für den Rest des Baugrundstücks, einschließlich Gestaltung des Straßenraumes zwischen Stadtgarten und Platz der Deutschen Einheit Auslober: Land Baden-Württemberg, Vermögen und Bau Baden-Württemberg Wettbewerbsart: offener Planungswettbewerb Zulassungsbereich: EWR/WTO Teilnahmeberechtigung: Architekten Teilnehmer: 126 Arbeiten Fachpreisrichter: Prof. Christoph Mäckler, Frankfurt/Main; Prof. Peter Schürmann, Stuttgart (V); Prof. Armin Günster, Stuttgart; Dieter Broghammer, Zimmern; Prof. Rainer Franke, HfT; Prof. Andreas Löffler, Architekturfakturfakultät HfT; Annette Ipach-Öhmann, Landesbetrieb Vermögen und Bau; Prof. Hartwig N. Schneider, Stuttgart; Prof. Tobias Wulf, Stuttgart; Dr. Detlef Kron, Stadt Stuttgart; Sybille Müller, Universitätsbauamt Stuttgart und Hohenheim Wettbewerbssumme: 81.500 Euro (zzgl. MwSt.) Preisgericht: 20./21.11.2009
1. Preis: Berger Röcker Architekten, Daniel Berger, Peter Röcker, Stuttgart
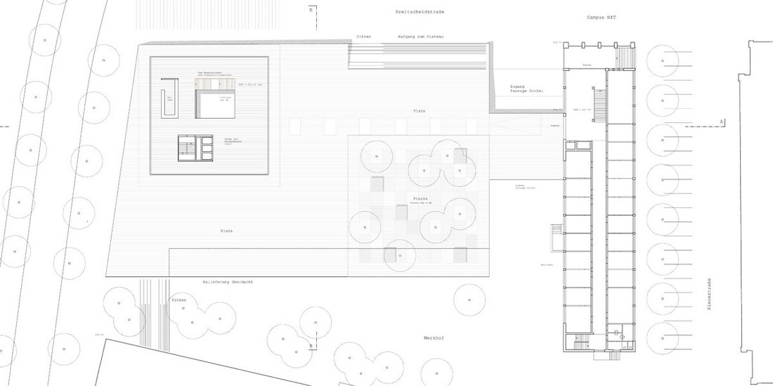
Lageplan
Beurteilung des Preisgerichts:
Städtebauliche + Architektonische Qualität: Es wird eine interessante städtebauliche Gesamtlösung angeboten, indem die Gebäudestruktur die vorhandene Blockstruktur der Hft aufnimmt und in Zeilen auflöst. Dadurch entsteht eine interessante architektonische Gestaltung, die es ermöglicht von der Breitscheidstraße tief in die Innenräume hineinzusehen so dass man, was sich in einer Architekturfakultät abspielt (z.B. Pläne), von außen erkennen kann. Verglaste Fugen dienen nicht nur der Transparenz (Innen- Außenbeziehung), sondern auch der Beleuchtung der Innenräume. Der Zugangsbereich wendet sich von der Breitscheidstr. ab und erfolgt über einen neuen Eingang von Westen, hinein in eine querliegende Halle von der man das bestehende Gebäude Kienestraße erreicht. Es wird dringend empfohlen den Bereich zwischen Neubau und Kienstraße regengeschützt zu überdecken oder durch eine Glashalle thermisch ganz schließen. Entlang der Querhalle liegen folgerichtig die geforderten Fluchttreppenhäuser und Aufzüge.
Raumprogramm und funktionale Zusammenhänge: Das Raumprogramm ist intelligent umgesetzt, indem die Räume gemäß ihrer Funktion, z.B. Hörsäle in den einzelnen Spangen untergebracht sind und somit eine klare Lesbarkeit und Übersichtlichkeit ermöglichen. Die einzelnen Spangen sind über Brücken miteinander verbunden, so dass Querbeziehungen möglich sind. Der Werkstattbereich im UG wird über den Werkhof gut erschlossen. Über eine der Lichthöfe könnte die Werkstatt besser belichtet werden. Generell schaffen die Lichthöfe im EG genügend Platz um Ausstellung etc. zu ermöglichen. Es wäre wünschenswert den Bestand besser an den Neubau anzubinden. Es ist zu prüfen, ob im UG und einem weiteren Obergeschoss eine Verknüpfung zur Kienestraße möglich ist. Die Gliederung des Raumprogramms in klare Zeilen erlaubt eine gewisse Flexibilität.
Nachhaltigkeit: Das Gebäude ist kompakt und hat ein gutes A/V-Verhältnis. Der Anteil der Fensterflächen ist relativ gering, was vermuten lässt, dass keine Überhitzung erfolgt und damit ein ausreichender thermischer Komfort über vorhandene Speichermassen gewährleistet werden kann. Wie schon erwähnt ist durch die Belichtung ein guter Komfort für die Räume gewährleistet; auf künstliche Belichtung kann weitestgehend verzichtet werden. Die Horizontalverglasung der Atrien ohne Verschattung und Sonnenschutz wird kritisch Verschattung ist nicht dargestellt und nachgewiesen.
Wirtschaftlichkeit: Insgesamt handelt es sich um ein wirtschaftliches Bauvorhaben, die wirtschaftlichen Daten liegen im unteren Bereich.
Bewertung: Insgesamt handelt es sich um eine intelligente und der Aufgabenstellung angemessene Lösung. Die zeitlose, sachliche, fast strenge Architektur des Gebäudes ist ein guter Beitrag zur Adressbildung der HfT sein.
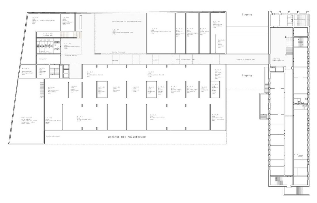
Grundriss
Schnitt 1
Schnitt 2
Ansicht Süd
Ansicht West
Ansicht Nord
Ansicht Ost
2. Preis: Onsitestudiao s.r.l. Angelo Lunati, Milano
Lageplan
Beurteilung des Preisgerichts:
Das Weiterführen der vorhandenen städtebaulichen Struktur mit maßstäblichen und gut proportionierten Gebäuden wird positiv beurteilt. Dies gilt vor allem für den ersten BA, dagegen wird der zweite Bauabschnitt als eher problematisch gesehen, vor allem in Bezug auf den geringen Gebäudeabstand zum ersten Bauabschnitt. Die senkrecht strukturierten Fassaden können noch nicht ganz überzeugen, der Glasanteil erscheint für die dahinterliegenden Nutzungen als zu gering. Der Zugang erfolgt übersichtlich über zwei Eingänge, die im Erdgeschoss verbunden sind. Der Eingang in den Neubau erfolgt selbstverständlich ohne Stufen von der Breitscheidstr. aus, allerdings wird auf die Straßenneigung der Breitscheidstr. nicht eingegangen. Die vorgeschlagene dreigeschossige Halle ist räumlich interessant gegliedert, die entstehenden inneren Terrassen können von der Hochschule vielseitig genutzt werden. Insgesamt entsteht im Inneren ein kommunikativer Raum hoher Qualität. Die Grundrisse sind ansonsten gut strukturiert und übersichtlich organisiert. Die umlaufenden Flure scheinen allerdings zu schmal ausgelegt. Sehr positiv beurteilt wird die Unterbringung der Werkstätten im Erdgeschoß, da diese so problemlos belichtet und angeliefert werden können. Das günstige A/V Verhältnis schafft gute Vorraussetzungen für eine energieeffiziente Bauweise. Die vorgeschlagenen Betonfertigteile erscheinen aufwändig und lassen durch ihre Tiefe nur eingeschränkte Ausblicke zu. Die Kennwerte für die Wirtschaftlichkeit liegen im mittleren bis oberen Bereich, was durch die deutliche Überschreitung der Programmflächen und durch die vorgeschlagene Eingangshalle begründet ist. Dies wird kompensiert durch eine klare und durchgängige Gebäudestruktur, die wirtschaftlich zu realisieren ist. Der Entwurf stellt eine überzeugende Erweiterung der Hochschule dar. Die innenräumlichen Qualitäten überzeugen besonders. Die Wirtschaftlichkeitsdaten liegen im mittleren bis oberen Bereich.
Grundriss
Schnitt
Ansicht West
Ansicht Nord
Ansicht Ost
Perspektive
3. Preis: Poos Isensee, Wolfgang Poos, Ulrich Isensee, Hannover
Lageplan
Beurteilung des Preisgerichts:
Das Weiterführen der vorhandenen städtebaulichen Struktur mit maßstäblichen und gut proportionierten Gebäuden wird positiv beurteilt. Dies gilt vor allem für den ersten BA, dagegen wird der zweite Bauabschnitt als eher problematisch gesehen, vor allem in Bezug auf den geringen Gebäudeabstand zum ersten Bauabschnitt. Die senkrecht strukturierten Fassaden können noch nicht ganz überzeugen, der Glasanteil erscheint für die dahinterliegenden Nutzungen als zu gering. Der Zugang erfolgt übersichtlich über zwei Eingänge, die im Erdgeschoss verbunden sind. Der Eingang in den Neubau erfolgt selbstverständlich ohne Stufen von der Breitscheidstr. aus, allerdings wird auf die Straßenneigung der Breitscheidstr. nicht eingegangen. Die vorgeschlagene dreigeschossige Halle ist räumlich interessant gegliedert, die entstehenden inneren Terrassen können Die Wettbewerbsarbeit fügt sich sehr maßstäblich in die Blockrandstruktur ein, mit enger Anbindung an das Gebäude Kienestrasse 45. Der 2 BA ist in der gezeigten Form allerdings nur schwer vorstellbar. Hervorzuheben ist insbesondere die komplexe Eingangssituation des Neubaus, die mit 2 Ebenen arbeitet: einerseits einer Kolonnade in Ost-West-Richtung, andererseits mit einem ebenerdigen Eingang, der dann allerdings in fast voller Breite in einem abgesenkten Werkhof mündet. Die Treppe in die Hauptgeschosse ist unterdimensioniert. Der über der Breitscheidstraße schwebende Baukörper ist zu hinterfragen. Die Breitscheidstraße selbst ist zweigeteilt, in einen Fußgängerboulevard mit Baumallee als Verbindung zum Stadtgarten, andrerseits als Park und Anliegerstraße; diese Lösung ist einfach und überzeugend. Das geforderte Raumprogramm ist sehr gut erfüllt. Das überdachte Atrium zwischen Alt- und Neubau ist als Pufferraum konzipiert. Das Gebäude ist ringförmig erschlossen, sodass sich eine Anbindung an den Altbau sehr funktionell ergibt. Die Grundrissstruktur ist sehr klar in Funktionsbereiche unterteilt. Die Sekretariate als Anlaufstellen sind allerdings sehr verdeckt angeordnet. Die Trennung der Funktionseinheit Dekanat ist ungünstig. Hervorzuheben ist der Werkhof in Interaktion mit dem Werkstattbereich, er öffnet sich nach Westen harmonisch zu einem abgestuften Terrassengarten. Das gewählte Konstruktionsraster ist flexibel nutzbar. Der Verfasser hat sich intensiv mit dem Thema Nachhaltigkeit beschäftigt. Das A/V – Verhältnis ist gut. Der kompakte Baukörper lässt eine günstige Energiebilanz erwarten. Die vollverglaste Westfassade und die ungleiche Öffnungsverteilung lässt allerdings Probleme erwarten. Die Rank- und Gitterrostebene nützt im Westen bei flachstehender Sonne wenig und ist zudem in der Fernwirkung schwach. Die wirtschaftlichen Daten liegen im mittleren bis unteren Bereich.
Schnitt
Ansicht Süd
Ansicht West
Ansicht Nord
Perspektive
4. Preis: Johannes Daniel Michel, Ludwigsburg
Lageplan
Beurteilung des Preisgerichts:
Städtebauliche + Architektonische Qualität: Bereits im 1. Bauabschnitt wird die städtebaulich wichtige Situation an der Büchsenstraße /Breitscheidstraße eindeutig und angemessen besetzt, die Positionierung des Baukörpers wird jedoch kontrovers diskutiert. Die Aufteilung in 2 quadratische Solitärbaukörper führt in Verbindung mit dem bestehenden Gebäude an der Kienestraße zu einem maßstäblichen Platz, der auf einfache und überzeugende Weise die Zugänge zu allen Baukörpern definiert. Durch die rückwärtige Lage des 2. Bauabschnitts ist eine spätere Realisierung aufgrund baukonstruktiver Vorgaben nur bedingt vorstellbar, erschwert und eingeschränkt. Eine Nutzung außerhalb der Hochschule für Technik erscheint wenig realisierbar. Die architektonische Gestaltung der Fassade wird durch die innere Funktion definiert und bestimmt dadurch ihr äußeres Erscheinungsbild. Ein Wechselspiel geschlossener Sichtbetonoberflächen und transparenter geschoßhoher Glasfassaden wirkt angenehm und erzeugt ohne großen Aufwand eine differenzierte Fassade. Hierdurch wird der Baukörper geschickt gegliedert. Durch die verglasten Werkstätten kann der lange Weg vom Neubau zum Bestand im Basement des Gebäudes aufgewertet werden. Die Breitscheidstr. wird durch eine 2-reihige Baumreihe zu einer städtischen Allee positiv aufgewertet. Der Platz am Ende der Schellingstraße wird als Grünfläche erhalten und lässt weiterhin eine Fußwegebeziehung zum Platz der deutschen Einheit zu. Eingeschränkt wird dies jedoch durch die Anlieferungszone der Werkstätten.
Raumprogramm und funktionale Zusammenhänge: Die grundsätzliche vertikale Aufteilung des Raumprogramms mit Werkstätten im Sockelbaukörper, der großzügig verglasten Eingangsebene und den darüberliegenden 6 Vorlesungs- und Seminargeschossen überzeugt. Es entstehen räumlich interessante und funktional gute Verbindungen innerhalb des Baukörpers. Eine mögliche Flexibilität ist durch Austauschen einzelner Funktionsbereiche denkbar.
Nachhaltigkeit: Die Reduktion der Außenwandflächen durch einen kompakten Baukörper und die innere klare Organisation der Grundrisse beeinflussen positiv die Nachhaltigkeit des gesamten Gebäudes. Alle Räume sind belichtet und belüftet. Dadurch wird ein hochwertiger Bauköper erstellt, der eine konventionelle Bauweise zulässt und keine besonderen baukonstruktiven Probleme erwarten lässt. Die großen Fensterflächen werden kritisch beurteilt, können jedoch durch 3-fach Verglasungen und außenliegenden Sonnenschutz kompensiert werden. Insgesamt wird die Nachhaltigkeit positiv bewertet.
Wirtschaftlichkeit: Die sehr kompakte Bauweise, die angemessenen Konstruktionsspannweiten und die konventionelle Fassadenkonstruktion führen zu einem wirtschaftlichen Baukörper. Die Kubaturwerte bewegen sich im unteren Drittel. Die Positionierung des 2. Bauabschnitts steht einer problemlosen Realisierung im Wege. Trotzdem besticht die Arbeit durch eine klare, städtebauliche Positionierung der Baukörper und einer ebenso differenzierten wie einfachen Grundriss- und Raum9 struktur. Die gewünschte Adressbildung der Hochschule für Technik wird hier bereits im 1. Bauabschnitt überzeugend erreicht.Die Wirtschaftlichkeitsdaten liegen im mittleren bis unteren Bereich.
Grundriss
Ansicht Süd
Ansicht West
Perspektive
5. Preis: Wittfoht Architekten, Prof. Jens Wittfoht, Stuttgart
Lageplan
Beurteilung des Preisgerichts:
Der Verfasser schlägt einen vom vorhandenen Gebäudebestand getrennten, an der Breitschiedstraße gelegenen Baukörper vor, der sich in der Dimension gut in dasstädtebauliche Umfeld einfügt. Der 2.BA wird in seiner Lage kontrovers diskutiert. Positiv wird gesehen, dass der Verfasser die Breitscheidstraße in sein Gestaltungskonzept einbezogen hat. Der Zugang zum Neubau erfolgt über eine langgestreckte Erschließungsspange, die Neu- und Altbau auf gute und selbstverständliche Weise miteinander verbindet und einen eindeutigen und angemessenen Eingang in die neue Architekturfakultät markiert. Der Erweiterungsbau steht auf einem Sockelgeschoss, das vorrangig die Werkstätten aufnimmt. Sie werden über einen Ladehof beliefert und sind über diesen und einen Licht- und Werkhof gut belichtet. Im Sockelgeschoss besteht darüber hinaus eine direkte Anbindung an den Altbau. Der Baukörper selbst „schwebt“ über dem gläsernen Eingangsniveau. Damit entsteht im EG ein großzügiger transparenter Eingangs-, Foyer- und Lehrbereich, der sich von der Straße bis hin zum Innenhof erstreckt und der sich gut für attraktive Pausen und Freizeitaktivitäten eignet. Der Erweiterungsbau ist in den Obergeschossen als Split-Level-Typ organisiert und kann so die unterschiedlichen Anforderungen an die Vorlesungs-, Seminar- und Bürobereiche gut erfüllen. Die Tragstruktur erlaubt eine weitgehend flexible Unterteilung auf den Geschossen und bietet daher gute Reaktionsmöglichkeiten auf künftige Anforderungen. Die Ausgestaltung der Fassade folgt derzeit gängigen Mustern und gibt keine Hinweise auf die spezielle Nutzung. Das Gebäude ist in energetischer Hinsicht wohl überlegt und würde in der weiteren Planung voraussichtlich die gestellten Anforderungen erfüllen können. Die Verknüpfungswerte für Flächen und Volumina liegen im mittleren Bereich. Die wirtschaftlichen Daten liegen im oberen Bereich. Der Entwurf gibt eine angemessene und interessante Antwort auf die gestellte Bauaufgabe. Die Fassaden sind verbesserungswürdig.
Grundriss
Schnitt
Ansicht Süd
Ansicht West
Ansicht Nord
Perspektive
6. Preis: Architekten 3P, Gerhard Feuerstein, Arne Rüdenauer, Stuttgart
Lageplan
Das Modell zeigt eine mit der Umgebung verträgliche Komposition aus mehreren Gebäuden, die einen zentralen Platz umschließen. Das Gebäude Kienestraße 45 ist selbstverständlich in die Gesamtfigur eingebunden. Die Maßstäblichkeit der Neubauten ist auch mit dem Hochpunkt am Platz d.dt. Einheit angenehm unspektakulär. Das zentrale Forum ist zwar auch ohne Realisierung des 2.BA denkbar, es müssten hier allerdings die Stellplätze vorgelagert werden. Problematisch ist die zentrale Lage des 2.BA, da dessen Nutzung nicht a priori für die HfT vorgesehen ist. Der keilförmige Flachbau ist gut organisiert und räumlich reizvoll ausgebildet. Der Anschluss an den Altbau ist entsprechend der Auslobung gut gelöst, der Hochbau ist auch nur über das UG angebunden. Das Erschließungsprinzip sieht alle Hauptzugänge vom Forum aus vor, sodass dieser Freiraum ausreichend belebt wäre. Kritisiert werden die weiten Wege von den studentischen Arbeitsplätzen vom Gebäude Kienestraße zu den Büroräumen (Assistenten, Dekan, ...) im Hochbau am westlichen Ende des Areals. Dessen Höhe mit 7 Geschossen ist für die Nutzbarkeit nicht optimal. Das äußere Erscheinungsbild der Neubauten in Sichtbeton und Glas zeigt eine klare Gliederung mit zurückhaltenden, nicht unbedingt spannungsvollen Proportionen. Generell erscheint die architektonische Haltung für diese Aufgabe wenig inspiriert. Die wirtschaftlichen Daten liegen im obersten Bereich.