Veranstaltungsort für Tagungen, Seminare, Produktpräsentationen oder Pressekonferenzen.
Informationen für private und gewerbliche Bauherrinnen und Bauherren, Städte und Kommunen.
Aufgabe: Innovationszentrum für junge Unternehmer in AalenAuslober: Stadt Aalen, OB GerlachWettbewerbsart: nichtoffener Realisierungswettbewerb Zulassungsbereich: EWR/WTOTeilnahmeberechtigung: ArchitektenTeilnehmer: 30 (28 + 2) ausgewählte Teilnehmer, 24 ArbeitenFachpreisrichter: Jutta Heim-Wenzler, Aalen; Prof. Tobias Wulf, Stuttgart; Wolfgang Riehle, Reutlingen (V); Anton Wagenblast; Ursula Hüfftlein-Otto, Stuttgart; Prof. Jörg Aldinger, Stuttgart; Corinna Stephan; Reinhold Zürn; Wolfgang Steidle Wettbewerbssumme: 44.000 Euro (inkl. MwSt.)Preisgericht: 29.06.2011
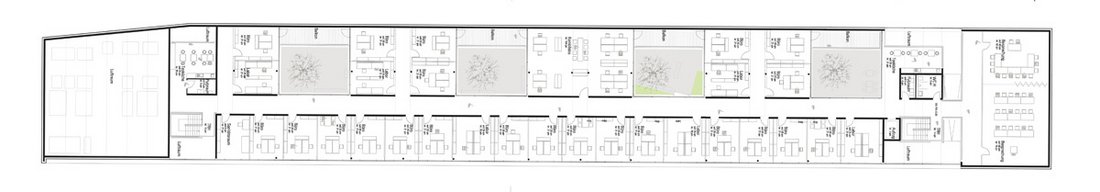
Der Entwurf zeigt ein sorgfältig ausgewogenes Konzept bezüglich der Verteilung der Baukörper (1. und 2. BA) in Abstimmung mit dem vorhandenen Wegenetz. Der Eingang liegt präzise ausformuliert an der richtigen Stelle und ist angemessen inszeniert. Ein 2-geschossigen Holzbau erhebt sich ganz selbstverständlich auf einem massiven Sockel der das Geländegefälle gut aufnimmt. Das Sockelthema ist konsequent und räumlich reizvoll auch in die Freiflächen hinein entwickelt, wobei die Anfahrtssituation zum Großmaschinenlabor beengt erscheint. Das äußere Erscheinungsbild zeigt eine sichere und angemessene Haltung in Bezug auf Proportion und Materialität speziell in diesem Hochschul-Bauensemble. Die Grundrisse sind in fast allen Teilbereichen nahezu optimal ausgebildet bezüglich Funktionalität und auch Raumerlebnis und Aufenthaltsatmosphäre. In diesem Zusammenhang sind auch die Klimahöfe positiv zu erwähnen, die in das Belüftungskonzept als Verteiler der über Erdkanäle zugeführten Zuluft dienen und als Klimapuffer wirken, da sie nach oben verglast sind. Aufgrund seiner klaren Struktur und moderaten Baumasse erscheint der Entwurf wirtschaftlich problemlos realisierbar. Der 2. Bauabschnitt kann störungsfrei angegliedert werden. Aufgrund des durchgehenden Sockelthemas bleibt die Einheitlichkeit gewahrt.
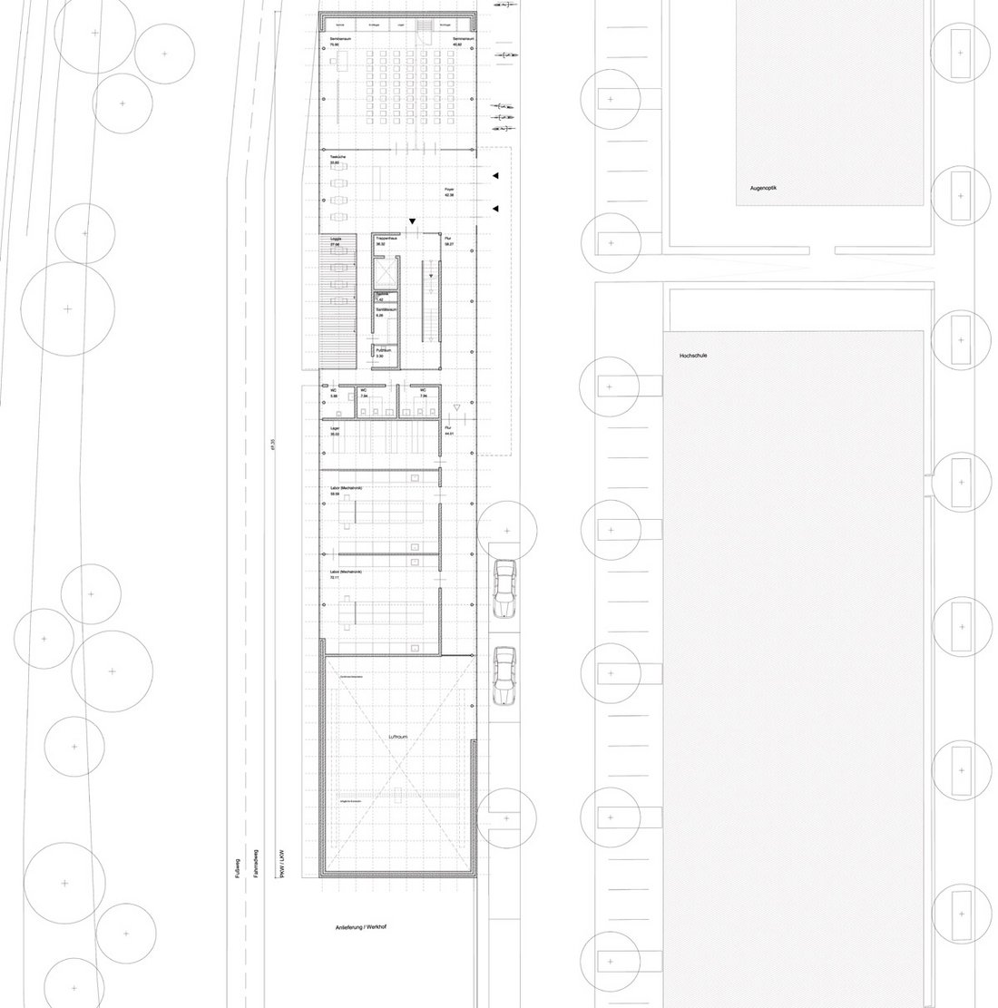
Der Entwurf inszeniert das EU Leuchtturmprojekt der Stadt Aalen als Landmark im Landschaftsraum. Vor dem szenenhaften Hintergrund der vorhandenen Gebäude des Hochschulcampus erhebt sich ein turmhafter Aufbau über die Sihouette und wird zum neuen Wahrzeichen der Gesamtanlage. Das stereometrische Fügungsprinzip mit horizontal und vertikal proportionierten Quadern wird präzise vorgetragen. Raumkanten und Raumbildung stehen im Dialog mit dem bestanden Campus und wirken dennoch eigenständig. Die Freiflachen und die Erschließung des Gebäudes sind funktional logisch angeordnet, allerdings ist das Maß ihrer Versieglung im Westen des Gebäudes unnötig hoch. Das Fügungsprinzip der Baukörper wird konsequent in die Verteilung der Nutzungen übertragen. Im Sockel befinden sich Gemeinschafträume und Sonderlabore. Im Turm werden Büroräume und Labore angeordnet. Die hohe Qualität der Grundrisse wird beispielhaft im Erdgeschoss deutlich. Das Zusammenspiel von Foyer, Vortragssaal, Loggia bildet die gewünschte künftige Kommunikationsstruktur auf selbstverständliche Weise ab. Der Regelgrundriss der Obergeschosse ist funktional und flexibel. Besonders angenehm ist die freie Umspülung der Vertikalerschließung mit hochwertigen Verkehrsflächen. Die angebotene Baukonstruktion ist einfach, robust und bewährt. Bei mittleren Werten der wirtschaftlichen Kennzahlen ist eine vernünftige Wirtschaftlichkeit in Investition und Unterhalt zu erwarten. Das gebäudeklimatischen Konzept ist in sich schlüssig. Fensterflächenanteil, Tageslichteintrag und Sonnenschutz sind ausgeglichen gewählt. Allerdings ist mit einer Verlärmung von 3 Fassadenseiten zu rechnen und damit mit einer nicht gewünschten Investition und Betrieb in eine mechanische Be- und Entlüftung. Der architektonisch gestalterische Ausdruck entspricht der Präzision und Bedeutung der städtebaulichen Disposition. Gefühl für Proportion und robuste Materialität erzeugen, auch in der Abgrenzung zum bestehenden Campus, eine qualitätvolle Eigenständigkeit. Insgesamt überzeugt der Entwurf durch seine funktionale Qualität in Verbindung mit einer überzeugenden Gestaltung.
Der Entwurf integriert das eingeschossige Bauvolumen nahezu vollständig in das abfallende Gelände und erzielt damit eine verblüffende Wirkung die darin besteht, das Bauensemble der Hochschule und den Landschaftsraum unbeeinträchtigt zu lassen. Diese starke Idee überzeugt als Konzept, wirft aber bei näherer Betrachtung Fragen auf bezüglich des Geländeverbrauchs und der Erkennbarkeit vom Hochschulcampus aus. Das extrem lange und niedrige Bauvolumen hat aber gerade aufgrund des Auskostens dieser Extreme das Potential zum Leuchtturmprojekt. Kritisch muss angemerkt werden, dass das Konzept bei Realisierung des 2. Bauabschnitts, der als Aufstockung geplant ist, an Überzeugungskraft verliert. Die Probleme liegen ansonsten eher im Detail: Während die langen inneren Wege durch die Vorteile der Anordnung aller Nutzungen auf einer Ebene mindestens aufgewogen werden, ist die Versorgung einiger unterirdischen Räume mit Tageslicht nur mit relativ hohem Aufwand möglich. Die daraus resultierende Dachlandschaft kann die aufgrund des Straßenlärm zweifelhafte Aufenthaltsqualität auf dem Dach nicht wettmachen. Bezüglich der Erschließung des Gebäudes besteht das grundsätzliche Problem, dass man ein Geschoss nach unten gehen (oder fahren) muss. Dies ist im Bereich der Rampe zum Großmaschinenlabor und beim Behindertenaufzug nicht restlos geklärt. Die architektonische Durchbildung des Projekts ist konsequent und sicher. Die mit Kastenfenster voll verglaste Westfassade hat einen hohen Wärmeeintrag zur Folge. Der vom Verfasser beschriebene Temperaturausgleich durch die großen erdberührenden Hüllflächen ist aufgrund der vorgeschriebenen Dämmung nur eingeschränkt wirksam. Ein mutiges und konsequent vorgetragenes Entwurfskonzept das in wesentlichen Fragen der äußeren Einbindung und Teilen der Funktionalität überzeugen kann, aber zwangsläufig zu einigen Detailproblemen führt.
Struktur ein. Die Zweigeschossigkeit erhöht die prägende Sprache der Bestandsbauten. Der Haupteingang ist richtig situiert. Der einfache Gebäudeumriss birgt eine konsequente, kammartige Grundriss-Struktur. Ruhige, gut nutzbare Innenhöfe verzahnen das Innovationszentrum mit dem Campus. Die versetzte Zweigeschossigkeit dieser Höfe ermöglicht vielfältige Blickbeziehungen zwischen den Ebenen und in der Landschaft. Die Laboren im Erdgeschoss gruppieren sich um die Höfe zu sinnvollen Einheiten. Die büroartigen Nutzungen im Obergeschoss sind teils linear, teils in Clustern angeordnet und somit flexibel und gut nutzbar. Kommunikationsinseln werden an sinnvollen Stellen angeboten. Dieser Entwurf bietet in besonderer Weise die Möglichkeit, auf maschinelle Lüftung zu verzichten. Die Fassaden- und Sonnenschutzsysteme sind einfach. Der Entwurf bildet die meistens Green-Building Attribute ab. Dem Verfasser gelingt es, durch die intelligente Gebäude-Struktur die Lärmquelle der Bundesstrasse vollständig auszublenden. Sowohl die Gebäudekubatur, als auch das hohe Maß an Hüllflächen liegen im oberen Bereich. Der geringe Aufwand bei der Haustechnik kann dies im Bezug auf die Kosten abmildern. Darüber hinaus sind Vereinfachungen, z.B. bei den shed-artigen Oberlichtern denkbar. Die hervorstechenden Qualitäten des Entwurfs liegen bei der städtebaulichen Einfügung und, mehr noch, bei der Gebäudestruktur, die in hohem Maße geeignet ist, Innovationen zu fördern.