Veranstaltungsort für Tagungen, Seminare, Produktpräsentationen oder Pressekonferenzen.
Informationen für private und gewerbliche Bauherrinnen und Bauherren, Städte und Kommunen.
Auslober: Gemeinde Aichtal, BM Lorenz Kruß, Stadtbaumeister Matthias HirnWettbewerbsart: nichtoffener RealisierungswettbewerbZulassungsbereich: EWR/WTOTeilnahmeberechtigung: ArchitektenTeilnehmer: 20 (15 + 5) ausgewählte Teilnehmer, 18 ArbeitenFachpreisrichter: Peter W. Schmidt, Freier Architekt BDA, Pforzheim (V); Gabriele D’Inka, Freie Architektin BDA, Fellbach; Peter Möller, Freier Architekt BDA, Pforzheim; Martin Reichert, Freier Architekt BDA, Berlin; Jelena Bozic, Freie Architektin BDA, Stuttgart; Peter Krebs, Freier Architekt BDA, KarlsruheWettbewerbssumme: 19.000 Euro (inkl. MwSt.)Preisgericht: 05.10.2012
Das Volumen des längsrechteckigen, zweigeschossigen Riegels wird an der Nordseite durch drei eingeschnittene Dachterrassen, an der West-, Ost- und Südseite durch das frei auskragende Flachdach sowie umlaufende Balkone maßstäblich und differenziert gegliedert. Die Erschließung erfolgt an der Nordwestecke vom Quartiersplatz aus. Ein überdeckter Vorbereich mündet in ein von Norden nach Süden durchladendes Foyer an welches sich der nach Südwesten orientierte Mehrzwecksaal und die zweiläufige Haupttreppe ins Obergeschoss unmittelbar und räumlich offen angliedern. Durch die Anordnung des Mehrzwecksaals im Kopfbereich des Riegels wird die Adressbildung zum Quartiersplatz gestärkt und eine auch eine von der Kita unabhängige Nutzung ermöglicht. In beiden Geschossen bildet der angemessen breite, beidseitig belichtete Mittelflur eine durchgängige Strukturachse, an die sich südlich im Erdgeschoss die U3- und im Obergeschoss die Ü3-Module anordnen, - nördlich davon reihen sich alle sonstigen, in der Regel dienenden Nebenbereiche. Die auf räumlichen Abschluss angewiesenen Funktionsbereiche (z.B. Ruheräume, WCs, Wickelräume, Küche, Personalbereiche) sind als massive Volumen/Körper interpretiert zwischen denen sich der öffentliche und halböffentliche Raum „fließend“ entwickelt. Teil dieses Raumkontinuums sind auch die Gruppenräume, die zum Flur hin in voller Breite und Höhe verglast sind. Dieses räumliche Grundkonzept unterstützt durch vielfältige Sichtbeziehungen, Ein- und Ausblicke die interne Kommunikation und die soziale Interaktion zwischen den einzelnen Gruppen. Der Grundriss zeichnet sich durch große Klarheit und leichte Verständlichkeit aus und bietet zudem räumlich differenzierte Angebote und variabel nutzbare Allgemeinbereiche. Einen besonderen Akzent setzen die Ü3 Gruppen im Obergeschoss, die mit einer größeren Raumhöhe die Möglichkeit für Spielbereiche auf einer angehobenen Zwischenebene ermöglichen. Das Raum- und Funktionsprogramm wird ohne Einschränkung erfüllt. Die Sollüberschreitung von ca. 19% ist vor allem den großzügig dimensionierten „gemeinsamen Räumen“ geschuldet und könnte -falls erforderlich- ohne nennenswerte Nutzungs- und Qualitätseinschränkungen reduziert werden. Alle Gruppenbereiche verfügen über einen unmittelbaren Zugang zu den Außenbereichen. Durch auskragende Dächer und Balkone entstehen zudem wettergeschützte Freiflächen im EG und im OG. Die mit 920 qm überraschend groß bemessene Gartenfläche ist nur schematisch dargestellt bietet aber ausreichend Potential für eine differenziertere Weiterentwicklung. Die Fassaden zeichnen sich durch formale Disziplin und durch den spannungsreichen Kontrast von geschlossenen Sichtbeton-Fertigteilen und großformatigen, raumhohen Verglasungen aus. Die Öffnungen sind dabei gut proportioniert und wirkungsvoll gesetzt. Hervorzuheben ist die starke Kongruenz von innerer Raumstruktur und äußerer Erscheinung. Das Materialkonzept beschränkt sich Innen wie Außen auf wenige, dauerhafte und robuste Materialien insbesondere Sichtbeton und Holz. Trotz der hochwertigen Materialwahl lässt die rationale Grundstruktur und der Verzicht auf komplizierte Sonderlösungen eine wirtschaftliche Umsetzung innerhalb der vorgegebenen Randbedingungen erwarten. Die Arbeit überzeugt durch ein robustes Grundkonzept, die souveräne Bewältigung des Raum und Funktionsprogramms, eine besonders qualitätsvolle Gestaltung sowie die hohe Effizienz beim Einsatz aller Mittel.
Der winkelförmige Entwurf bildet eine ablesbare Kante zum anschließenden Quartiersplatz und kann hier besonders städtebaulich überzeugen. Vom Platz aus wird der geplante Kindergarten auf kurzem Weg erschlossen. Im Eingangsbereich sind Garderobe und Kinderwagenfläche richtig angeordnet. Die großzügige Halle erschließt Mehrzweckraum und Essraum. Eine Schaltbarkeit beider Räume wäre wünschenswert und einfach möglich. Die hier vorgelagerte Terrasse mit Pergola könnte teilweise überdacht, auch bei schlechtem Wetter Freispielfläche ermöglichen. Die zum Quartiersplatz gelegene Freifläche wird jedoch im Hinblick auf die Häufigkeit der Nutzung, die Möglichkeit der "Fremdnutzung", sowie die nicht einfache Aufsichtsmöglichkeit vom Nutzer kritisch gesehen. Die Zuordnung von Gruppenräumen und zugehörigen Nebenflächen ist gut organisiert. Die Kleingruppen sind von Flur und Gruppenräumen aus zugänglich. Im Erdgeschoss ist das Thema Schmutzschleuse bei der Rückkehr von den Außenflächen nicht gelöst. Im EG-Plan wird auf nicht dargestellte Technik- und Materialräume im Untergeschoss verwiesen. Die dargestellte Fassadengestaltung ist überarbeitungswürdig. Die unterschiedliche Ausbildung der verschiedenen Ausrichtungen ist richtig, aber nicht überzeugend durchgearbeitet. Die vorgeschlagene WDVS-Fassade ist weder in Investition (notwendige Brandriegel) noch Folgekosten so günstig wie es scheint. Eine Stahlbetonkonstruktion ist auch bei der Verwendung von Fertig- und Halbfertigteilen im Hinblick auf die zur Verfügung stehende Bauzeit kritisch zu sehen. Der winkelförmige Baukörper ist, besonders im Hinblick auf die Verbindung von Innen- und Außenräumen ein interessanter und wertvoller Beitrag zum Thema.
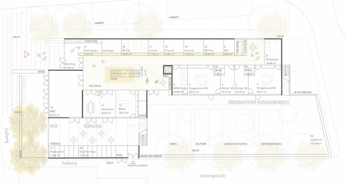
Der zweigeschossige Baukörper präsentiert sich am Quartiersplatz als öffentliches Gebäude, der Eingangsbereich und die große Verglasung des Mehrzweckraumes deuten auf den Inhalt hin. Über einen angemessen dimensionierten, gedeckten Vorbereich und Windfang erschlossen öffnet sich im Innern die Foyerzone zum Garten hin, in Verbindung mit dem seitlichen Mehrzweckraum entsteht eine großzügige Raumzone, die einen einladenden und kommunikativen Charakter hat und sich unterschiedlich bespielen lässt. Leider sind der Raum für die Leiterinnen und einer von beiden Personalräumen innenliegend und nur über das Foyer belichtet. Die innere Organisation ist einfach und schlüssig aufgebaut, die Nebenräume liegen auf der Nordseite, die Spiel- und Aufenthaltsräume zur Südseite. Besonders begrüßt werden großzügige Raumaufweitungen auf der Nordseite auf beiden Ebenen, und im Obergeschoss auf der Südseite der Essbereich als offene Raumzone. Kritisiert wird, dass die Küche im EG und der Essbereich im OG weit auseinanderliegen. Mit den Terrassen auf beiden Ebenen wird der Gartenzugang für alle Gruppenräume ermöglicht, allerdings entsteht hinter der Treppe eine Engstelle. Leider reagieren die Außenanlagen wenig auf das Innere, die große Grünfläche erfährt keine Differenzierung. Die Gestalt des Baukörpers spiegelt das Innere wieder, mit der dreiseitig vorgeschlagenen Lochfassade und der kompletten Verglasung zur Südseite. Die Darstellung bleibt aber insgesamt sehr schematisch und das bunte Spiel auf der Fassade erklärt sich nicht. Die wirtschaftlichen Kenndaten liegen im Vergleich aller Arbeiten leicht über dem Durchschnitt, der hohe Verkehrsflächenanteil resultiert aus den zusätzlichen Spielflächen und trägt zur Großzügigkeit im Innern bei. Insgesamt ein angemessener Beitrag und konsequent entwickelter Entwurf mit hohen Aufenthaltsqualitäten im Innern.