Veranstaltungsort für Tagungen, Seminare, Produktpräsentationen oder Pressekonferenzen.
Informationen für private und gewerbliche Bauherrinnen und Bauherren, Städte und Kommunen.
Aufgabe: Neubau eines neuen Kreativwirtschaftszentrums mit ca. 6.750 m2 Auslober: Stadt Mannheim, Dezernat II, Fachbereich für Wirtschaft- und Strukturförderung vertreten durch das Baukompetenzzentrum, Marcus Augsburger, MannheimWettbewerbsart: nichtoffener Realisierungswettbewerb Zulassungsbereich: EWR/WTOTeilnahmeberechtigung: ArchitektenTeilnehmer: 25 (20 + 5) ausgewählte Teilnehmer, 25 ArbeitenFachpreisrichter: Jörg Aldinger, Klaus Elliger, Horst Ermel, Dr. Martina Kubanek, Jórunn Ragnarsdóttir (V), Dea Ecker, Marco Spies, Harald ThieleWettbewerbssumme: 80.000 Euro (inkl. MwSt.)
Das städtebauliche Gefüge des Entwurfs orientiert sich an der Silhouette des Hafenbeckens. Lagerhafte Gebäude alternieren mit vertikalen Akzenten. Rhythmus, Orientierung und Proportion des Kreativzentrums Jungbusch reflektieren typische Themen des Ortes und variieren sie auf spielerische, wenngleich durch international bekannte Vorbilder vielfach publizierte, Weise. Der spielerische Umgang mit der Geometrie der Kuben bietet ansprechende räumliche Verknüpfungen von Innen nach Außen. Die Minderung der geometrischen Stringenz und Klarheit zugunsten der Variation lassen eine leichtere Akzeptanz der Einrichtung im gesellschaftlichen Umfeld erkennen. Das Entwurfsprinzip bindet die Rudimente des Yaman Gebäudes in die Silhouette des Ensembles ein und macht durch Material und Fügung den Zeitsprung der Gebäude deutlich. Das Gebäude ist sinnvoll erschlossen. Allerdings wird die intensive Orientierung der Gastronomie auf den Quartiersplatz zwischen Belebung und Vereinnahmung kontrovers diskutiert. Gleiches gilt für das Deck im OG zwischen geschützter Nutzung, nachbarschaftlicher Beeinträchtigung und ungewolltem Rückzug aus dem Stadtraum. Die Grundrissorganisation des Entwurfs ist gelungen. Insbesondere das Erdgeschoss kann vielfältig bespielt werden. Gastronomie, Ausstellung, Showrooms und Lobby stehen in funktionaler und gestalterisch guter Beziehung. Die Arbeitsräume sind sinnvoll angeordnet und proportioniert. Das Gefüge des Gebäudes und die klaren Grundrisse lassen einen wirtschaftlichen Entwurf erwarten. Konterkariert wird die wirtschaftliche Disposition durch die aufwändige Fassadenkonstruktion. Das angebotene gebäudeklimatische Konzept lässt eine Balance zwischen notwendigem Komfort und wirtschaftlichem Betrieb erwarten. Insgesamt beeindruckt der Entwurf durch seine pragmatische Durcharbeitung, die leider durch dieBeliebigkeit des architektonischen Ausdrucks an Wert verliert.
Die Verfasser schlagen vor, alle Nutzungen, die im engeren Sinne zum Kreativ-Zentrum gehören, in einem Neubau zusammenzufassen, während alle anderen Nutzungen wie die städtische Galerie, das Café und der Versammlungsraum im historischen Yaman- Gebäude zusammengefasst werden. Mit dieser klaren Zuordnung fügt sich der Neubau schlüssig in die Abfolge der Gebäudekubaturen längs des Verbindungskanals ein. Das äußere Erscheinungsbild versucht, die Atmosphäre des Ortes einzufangen und den rauen Charme des Hafens aufzunehmen. Kontrovers diskutiert wird, ob das Gebäude im Kontext der Wohnbebauung des Jungbuschs zu hart erscheint und eine selbstverständliche Integration in den Stadtteil erschwert. Auch die Proportionen der Giebelseiten und der pseudohistorisch wirkende Aufsatz auf dem Yaman – Gebäude finden nicht ungeteilte Zustimmung. Aus denkmalpflegerischer Sicht ist allerdings die Integration der historischen Fassaden sehr gelungen. Der große Glasanteil der Fassade des Neubaus wirft insbesondere nach Süden die Frage auf, ob eine Aufheizung mit den vorgeschlagenen baulichen Maßnahmen ohne zusätzliche Klimatechniken verhindert werden kann. Die Bürogeschosse sind klar gegliedert und gut nutzbar. Die Verwandelbarkeit der einzelnen Räume erweitert die Nutzungsmöglichkeiten. Insbesondere die 2-geschossigen Pausen- und Kommunikationsräume mit dem Ausblick auf Hafen und Verbindungskanal stellen eine wertvolle Bereicherung dar. Die Aufteilung der städtischen Galerie auf zwei Etagen ist kritisch zu bewerten. Mit 400 m² zusätzlichen Flächen liegt die Arbeit wirtschaftlich im mittleren Bereich. Insgesamt stellt die Arbeit einen wertvollen Beitrag für die gestellte Aufgabe dar.
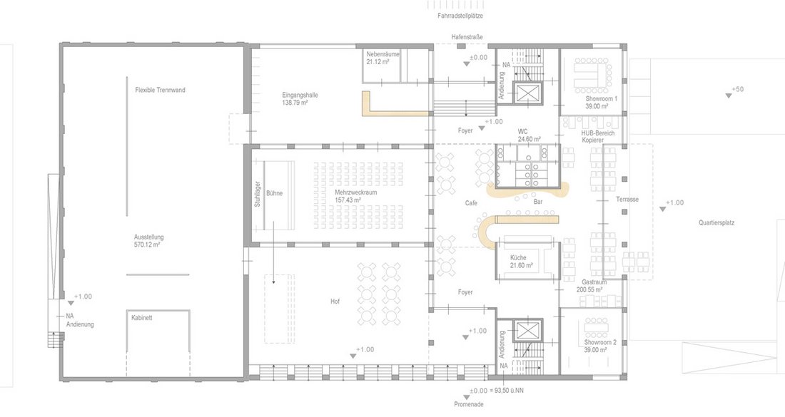
Das Gebäude zeigt eine Dreiteilung des Baukörpers: Yamangebäude – Mittelspange als Hofbereich mit eingestelltem Mehrzwecksaal – „Hochbau“ mit Gastronomie im EG und Büros der Kreativwirtschaft in den OGs. Die Grundrissorganisation entspricht leider nicht durchgängig der äußeren Gebäudegliederung. Die Lage des Mehrzwecksaals zwischen Gastronomie und Galerie ist gut. Problematisch ist die vorgeschaltete Eingangshalle, die nicht von der Hafenstraße zugänglich ist und einen undefinierten Nutzungscharakter hat. Bedauerlich ist die Lage eines Erschließungskerns an der wasserseitigen Fassade. Über Eingangshalle und Mehrzwecksaal des EGs werden im 1. OG Büroräume angeordnet. Die Anbindung der Flussseite über den Arkadenhof ist räumlich reizvoll, jedoch wirken die hohen Stützen des Hofes zu monumental und dem Ort nicht angemessen. Hinsichtlich des befürchteten Vandalismus ist die offene Rückseite problematisch. Durch den Haupteingang vom Quartiersplatz wird der Zugang von der Hafenstraße zum Nebeneingang degradiert, was für die Belebung der Hafenstraße nachteilig ist. Für die Fassaden wäre eine diszipliniertere Gestaltung wünschenswert. Ein Verzicht der farbigen Glasscheiben und gerahmten Fensterbänder würde das Erscheinungsbild positiv beeinflussen. Insgesamt erscheint die Fassade etwas tapetenartig. Der Neubau dockt seitlich an das Yamangebäude an und zeigt einen behutsamen Umgang mit der denkmalgeschützten Fassade. Der Gebäudekomplex wird über das Ziegelband der Fassade in der Sockelzone zusammengebunden. Ob die einheitliche Wirkung der Ziegel von Alt- und Neubau sich in der Realität so darstellt wird angezweifelt. Das Raumprogramm wird hinsichtlich der Flächen etwas überschritten. Das Gebäuderaster und der innere Erschließungskern lassen für die Gestaltung und Aufteilung der Büroflächen zahlreichen Möglichkeiten zu. Dadurch wird die Funktionalität der Bürogeschosse gewährleistet. Das Verhältnis VF zu NF ist gut erfüllt. NF/BGF und A/BRI bewegen sich im geforderten Bereich. Insgesamt wäre das Gebäude zu wirtschaftlich vertretbaren Kosten zu realisieren. Der Entwurf bietet ein eher konventionelles Energiekonzept. Zur Nachhaltigkeit werden keine Aussagen gemacht.