Veranstaltungsort für Tagungen, Seminare, Produktpräsentationen oder Pressekonferenzen.
Informationen für private und gewerbliche Bauherrinnen und Bauherren, Städte und Kommunen.
Aufgabe: Bauwerksplanung eines Rathauses einschl. dessen städtebauliche Einbindung und der Freianlagen in Eislingen/FilsAuslober: Stadt Eislingen/FilsWettbewerbsart: nichtoffener zweiphasiger Realisierungswettbewerb Zulassungsbereich: EWR/WTOTeilnahmeberechtigung: ArchitektenTeilnehmer: 30 (20 + 10) ausgewählte Teilnehmer, 28 ArbeitenFachpreisrichter: Prof. Jörg Aldinger, Stuttgart; Gabriele D´Inka, Fellbach; Prof. Joachim Frowein, Freiburg; Sven Kohlhoff, Stuttgart; Thomas Schuster, Eislingen/Fils; Prof. Rainer Zinsmeister, Stuttgart (V); Dr. Sigrid Hintersteininger, Stuttgart; Rainer Mittner, GöppingenWettbewerbssumme: 30.000 Euro (inkl. MwSt.)Preisgericht: 10.09.2010
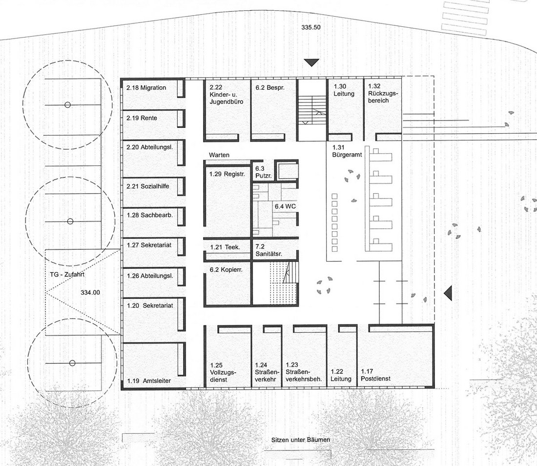
Ein Solitärbauwerk wirkt als Gelenk in der städtebaulich heterogenen Situation in Eislingen. Die selbstbewusste, kraftvolle und ästhetische Ausformung des Solitärs wird der Anforderung der Integration unterschiedlichster städtebaulicher Strukturen bestens gerecht. Lediglich die Feinabstimmung der Locierung wird irn Preisgericht kritisch hinterfragt. Mehr Raum am östlichen Eingang wäre notwendig und realisierbar um die nördlichen und südlichen Fußgängerströme angemessen zu empfangen. Die architektonische Qualität des Entwurfs besticht durch Stilsicherheit, Gefühl für Proportion und Maßstab. Der gestalterische Anspruch des Solitärs wird überzeugend eingelöst. Die Anordnung und Ausformung der Funktionen und des räumlichen Gefüges ist überzeugend. Beispielhafte seien die lichtdurchfiutete Halle mit der Anbindung des Bürgerbüros, die räumliche und funktionale Entwicklung der Vertikalerschließung und die Gestaltung des Saals erwähnt. Kleinere Einschränkungen entstehen dagegen in der Verteilung des Dezernat 111 in 3 Geschossen und der Belichtung des nördlichen Flurs in den Verwallungsgeschossen. Die leichte Übererfüllung der Nutzflächen dürfte die Möglichkeit der Korrektur eröffnen. Die Wirtschaftlichkeit des Entwurfs wird durch seine Kompaktheit, sein diszipliniertes Grundrissbild und seine sicheren baukonstruktiven Vorschläge positiv geprägt. Das vorgeschlagene gebäudeklimatische Konzept entspricht dem Stand zukunftsfähiger Technik und lässt einen verantwortungsvollen Umgang mit Ressourcen erwarten. Insgesamt besticht der Entwurf durch seine durchgängige Qualität, naheliegende Realisierbarkeit und seine der Aufgabe angemessene Hallung.
Der kompakte neue Baustein, plalziert auf einer durchgängig gestalteten Platzfläche, lässt auf der Ostseite einen großzügigen Rathausvorbereich entstehen. Ein Baumpaket wird vor der Apotheke richtig platziert. Fußgängerströme werden aus Nord und Süd aufgenommen und die neue Freifläche trägt entscheidend zur Belebung der Hauptstraße und Verbesserung der Aufenthaltsqualität bei. Der 6-geschossige Baukörper setzt innerhalb der heterogenen Struktur ein deutliches Zeichen als wichtiges öffentliches Gebäude und ist als Rathaus erkennbar. Es wäre wünschenswert, dass der Eingangsbereich deutlicher ablesbar innerhalb der filigranen Fassadenstruktur wäre, Die Erschließung der Tiefgarage, abgerückt von der Fassade auf der Grundstücksgrenze, erschwert die Erschließung der südlichen Grundstücke, wobei eine Erweiterung der 2-spurigen Zufahrt problemlos möglich wäre. Die innere Organisation des Gebäudes ist äußerst knapp konzipiert, Aufweitungen erfolgen nur über die notwendige Treppenanlage mit einer schmalen Belichtung von oben über die Treppenaugen. Diese Sparsamkeit führt jedoch zu übersichtlichen Grundrissorganisationen mit kurzen Wegen, die windmühlenflüglig angelegten Flure sind durchgängig gut belichtet. Das Gebäude verfügt nur über ein Fluchttreppenhaus, was zu erhöhten Aufwendungen im Brandschutz führen dürfte. Sämtliche Raumanforderungen sind erfüllt, die publikumsintensiven Bereiche mit dem Bürgerbüro liegen im Erdgeschoss, die Säle im 1. OG mit entsprechenden Foyerflächen. Leider wird der Sitzungssaal zum gegenüberliegenden Schlosstheater orientiert. Kritisiert wird, dass der Personalaufenthaltsraum im UG platziert wurde. Der Entwurf weist eine gute Wirtschaftlichkeit durch disziplinierte Grundrisse und strenge Geometrie auf. Die Kompaktheit führt zu einem optimalen NY-Verhältnis, was eine gute Voraussetzung für den Passivhaus-Standard darstellt. Zusammenfassend ein Entwurf, der als kompakter Baustein ein deutliches Zeichen setzt und zur Ausbildung einer erkennbaren Mitte zwischen Nord- und Süd-Eislingen beiträgt.
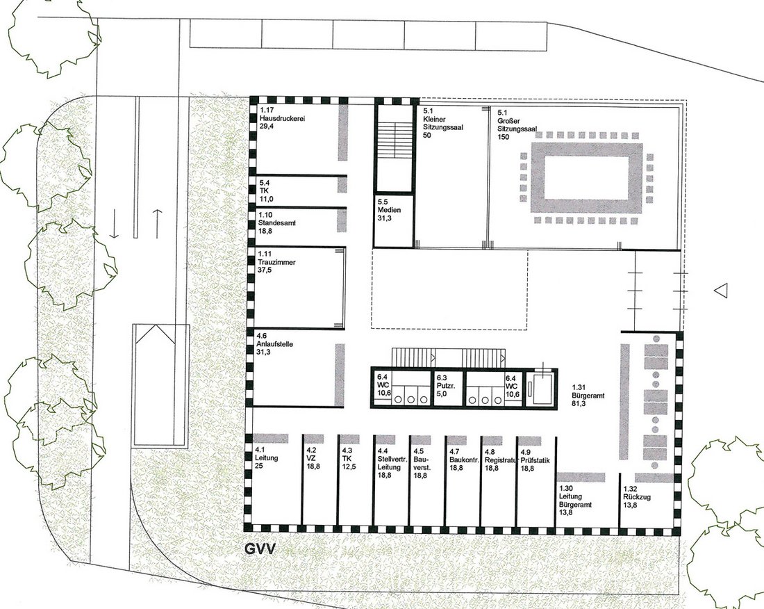
Die Verfasser stellen einen sehr konsequenten Entwurf vor mit einem viergeschossigen quadratischen Baukörper, der an richtiger Stelle platziert ist und somit nach allen Seiten zu städtebaulich guten Lösungen führt. Auch für zukünftige Stadtentwicklungen lässt der Entwurf viele Möglichkeiten offen. Besonders positiv zu bewerten ist hierbei der großzügig gestaltete Vorplatz auf der Ostseite des neuen Rathauses, der die Hauptfußgängerverbindung von Nord nach Süd verbessert aufnimmt. Richtigerweise liegt hier der Haupteingang des Rathauses. Die Lage der Besucherstellplätze, die Zufahrt zur Tiefgarage und die Erschließung der weiteren Parkplätze im Süden sind optimal angeordnet. Der Rathausneubau ist gut proportioniert und definiert im Erdgeschoss durch eine sehr transparente Fassade den Eingangsbereich. Dies ist allerdings die einzige gestalterische Abweichung einer rigiden und gleichförmigen Fassadenausbildung über alle Geschosse und nach allen Seiten des Gebäudes. Die Fassadenqualität wurde daher im Gremium kontrovers diskutiert, ebenso die exponierte Lage der Sitzungssäle an der attraktivsten Ecke des Gebäudes, die deshalb ein besonderes Nutzungskonzept als multifunktionale belebte Fläche erforderlich macht. Die innere Organisation ist auF allen Geschossen überzeugend gelöst und vermittelt durch das viergeschossige Atrium einen offenen, übersichtlichen und bürgerfreundlichen Eindruck. Damit werden auch alle VerkehrsFlächen im Inneren des Hauses erfreulicherweise natürlich belichtet. Die Nutzungen sind sinnvoll angeordnet und bieten fast allen Räumen gute Arbeitsqualitäten mit Ausnahme der sehr schmalen und tiefen Einzelbüros. Eine ringförmige Anordnung der Büroräume ermöglicht hohe Flexibilität in der Nutzung und kann damit die funktionalen Anforderungen des Auslobers weitgehendst erfüllen. Die vorgeschlagenen Konstruktionen und Materialien stellen wirtschaftliche Baukonzepte dar, die in Erstellung, Betrieb und Unterhalt sich bewährt haben. Ebenso positiv gesehen werden die im günstigen Bereich liegenden Kenn- und Planungsdaten. Das energetische Gesamtkonzept ist in sich schlüssig und wird schon durch den Gebäudeentwurf mit seinem kompakten Baukörper und dem sehr guten Verhältnis von Volumen und Oberfläche vorteilhaft beeinflusst. Der Entwurf überzeugt in allen Bereichen durch seine konzeptionelle Einfachheit und Klarheit.
Die Achse der Fußwegverbindung von Nord nach Süd wurde aufgenommen. Durch die Ausrichtung des Gebäudes wird eine Beziehung zur benachbarten historischen Bausubstanz (Schloss) erreicht. Das Gebäude wurde so auf dem Grundstück angeordnet, dass ein großzügiger Rathausvorplatz geschaffen wurde. Durch die Höhenentwicklung erhält das Gebäude eine Dominanz und ist dadurch vom Nord- und Südteil der Stadt sichtbar. Es wirkt somit als verbindender Punkt. Im Süden des Gebäudes sind geringe Aufenthaltsfreiflächen mit Sitzmöglichkeiten vorgesehen. Allerdings ist die von Norden auF den Vorplatz führende Treppenanlage störend. Außerdem ist deren Erforderlichkeit in Frage zu stellen. Die mögliche Einbindung der Fahrflächen in den Rathausvorplatz wurde nicht erkannt. Das Gebäude weist eine klare Struktur auf. Der Eingangsbereich mit transparenter Glasfassade ist leicht auffindbar. Die Grundrisse sind klar strukturiert und weisen eine gute Orientierbarkeit auf. Das Bürgerbüro im Eingangsbereich des Erdgeschosses, sowie die Sitzungssäle im ersten Obergeschoss sind gut platziert. Der große Sitzungssaal ist zweigeschossig geplant. Die Fassaden des kubischen Baukörpers mit seinen großen Flächen aus weißem Beton und Glas wurden kontrovers diskutiert. Das knapp dimensionierte eingeschossige Foyer im Erdgeschoss mit einer teileingehausten Haupttreppe sind wenig repräsentativ. Mit Ausnahme der obersten beiden Geschosse sind alle Geschosse voneinander getrennt. Das Raumprogramm ist erfüllt. Die Räume sind klar und übersichtlich angeordnet. Hervorzuheben ist die flexible Raumnutzung der Sitzungssäle im ersten OG durch Fallschiebewände zum Foyer. Das Bürgerbüro ist etwas zu knapp dimensioniert. Teilweise sind die Büroräume zu knapp dimensioniert und in ihrem Zuschnitt zu schmat. Die Auffindbarkeit des Aufzuges im Erdgeschoss ist erschwert weil er zu weit vom Haupteingang und vom Haupttreppenhaus angeordnet ist. Die Rampenführung und Höhenlage der Tiefgarageneinfahrt erscheinen knapp und sind zu überprüfen. Der kompakte Baukörper erreicht durch seine funktionale Gestaltung und klare Raumstruktur eine hohe Wirtschaftlichkeit. Durch die kompakte Bauweise ist ein geringer Energieverbrauch erreichbar. Die Aussagen zum Energiekonzept sind nachvollziehbar.
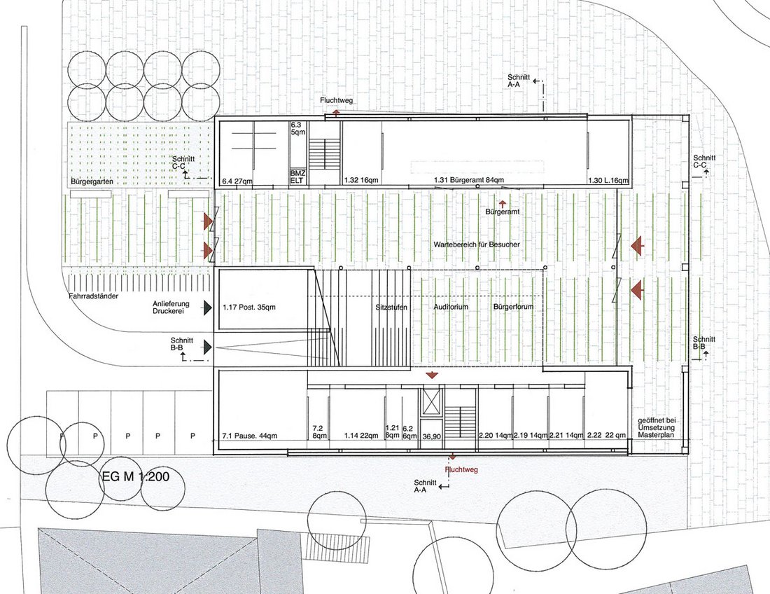
Der Entwurfsansatz, den quadratischen insgesamt 5-geschossigen Baukörper im westlichen Grundsslücksbereich zu positionieren, ermöglicht einen wohlproportionierten östlich des Baukörpers liegenden Vorplatz. Diese Konstellation erfasst zum einen die vorhandenen fußläufIgen Beziehungen und bietet darüber hinaus für die zukünftig südlich angrenzende städtebauliche Entwicklungsmöglichkeiten eine gute Ausgangssituation. Die äußere Erschließung in die Tiefgarage sowie in den südlichen Bereich ist überzeugend gelöst. Für die 6 im Vorplatz befindlichen öffentlichen Stellplätze ist ein wenig störender Standort. Der Baukörper wird durch ein Zurückversetzen des Erd- und Dachgeschosses gegliedert. Der den 3 Obergeschossen vor gelagerte Umgang, der als oplimaler Sonnenschutz und Fluchtweg dient, ist bei der weiteren planerischen Vertiefung überzeugend herauszuarbeiten. Die Eingangssituation mit Zutritt in die über alle Geschosse verlauFende Halle wirkt großzügig einladend und gibt dem Besucher eine eindeutige Orientierung. Das Bürgerbüro verfügt über einen sehr großzügigen Thekenbereich über diesen eine große Bandbreite von Dienstleistungen erledigt werden kann. Die gute Orientierung setzt sich im gesamten Gebäude mit klar strukturierten Grundrissen fort, wobei die Verwaltungsräume um einen klaren Kern von Nebenräumen gegliedert sind. Das gewählte Raster von 1,35 m ermöglicht einen guten Raumzuschnitt. Die Besprechungsräume am zentralen Kern lassen durch den Bezug zum Luftraum eine relativ hohe Qualität erwarten. Im 4.0bergeschoss lässt die Anordnung beider Säle auch für größere Veranstaltungen eine gemeinsame Nutzung zu. Der direkte Bezug zu den Außenterrassen stellt einen guten Bezug zum Außenraum dar. Die kompakte Bauform mit einem wirtschaftlichen Verhältnis von Grundfläche zu Volumen lässt insgesamt eine relativ wirtschaftliche Lösung erwarten. Wobei die Geschosshöhe der Obergeschosse mit 3 m zu niedrig ist. Energetisch bietet der vom Volumen her relativ wirtschaftlich kompakte Baukörper sehr gute Voraussetzungen für eine Passivhaus-Konzeplion. Insgesamt stellt der wirtschaftliche Entwurf in vielen Bereichen eine überzeugende Lösung dar, wobei die Unsicherheit bei der gestalterisch überzeugenden Umsetzung der Fassade liegt.